Home   >   House and Land Newcastle/Hunter   >   Lot 304/6 Winakang Street Munibung Hill, SPEERS POINT NSW 2284

Lot 304/6 Winakang Street Munibung Hill, SPEERS POINT NSW 2284
Inclusions Diamond Collection ribbon

$1,644,000

Designed for living - House and Land package

Elevated Living with Lake Views. Discover the perfect blend of lifestyle and convenience at Munibung Hill Estate.

This 550sqm parcel of land offers a unique opportunity to build your dream home in one of Lake Macquarie’s most sought-after locations. Positioned high on Munibung Hill, the block captures sweeping views across the lake and surrounding bushland, blending natural beauty with modern convenience.

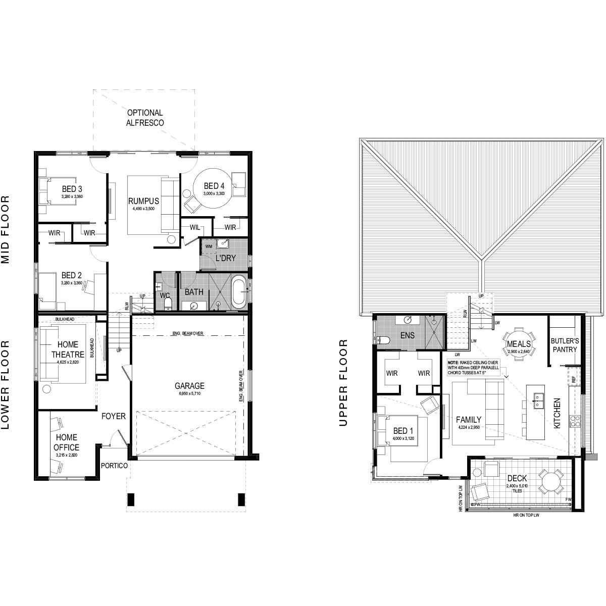
Paired with Montgomery Homes Riviera 2 264 design, this property delivers modern comfort and functionality. Featuring four spacious bedrooms, two bathrooms, and open-plan living areas, the home is designed for effortless family living. Highlights include a stylish walk-in pantry, dedicated home theatre, and a versatile IT nook – all crafted to make everyday life both practical and inspiring.

Our Diamond Collection of inclusions will elevate your home with style and quality. Plus, for a limited time, you can enjoy $70,000 worth of bonus luxury inclusions*.

From the kitchen, the bathroom, exterior and more, our Diamond Collection of inclusions will ensure your home not only features cutting edge design elements, but also provides the practicality and style you need to create your oasis to entertain, unwind, and truly feel at home.

• BASIX and water tank
• Standard site costs
• Termite resistant frames and trusses
• Sarking under roof tiles
• Large double garage with remote door
• Flyscreens to all windows and sliding doors
• 900mm Fisher & Paykel cooktop & oven
• Fisher & Paykel stainless steel dishwasher & microwave
• Frameless shower screen
• Luxurious 20mm stone kitchen bench
• Luxurious 20mm stone vanity to laundry, bathroom & ensuite
• Three coats of premium anti-mould and bacteria resistant wall paint* (internal walls)
• Floor to ceiling tiling to bathroom & ensuite
• Soft close kitchen drawers and doors
• Daikin Inverter Ducted Air Conditioning (multiple zones)
• 2580mm increased ceiling heights to the primary living floor only (where kitchen is located)
• Square set ceiling to living area, bathroom, ensuite and powder room!

For more information on this package, or for anything else, please reach out to me directly over the phone or via my email.

*CONDITIONS APPLY
Bundle price excludes costs associated with land purchase (e.g. legal fees, stamp duty and property searches etc) and are subject to developer and regulatory review. Images shown are for illustrative purposes, refer to Standard Inclusions. Montgomery Homes reserves the right to revise plans, pricing and all specifications without obligation or notice prior to payment of a commencement fee. Site cost allowances are based on average site costs and may vary per individual site. Clients are responsible for full site preparation prior to construction. Designs and plans are copyright protected and remain the property of Montgomery Homes Pty Ltd at all times. Further conditions may apply.

Estate: “Munibung Hill”
Inclusions: “Diamond”
Design: “Riviera 2 264”

Sales Executive
Carl Sullivan
Get In Touch

Floorplan

Lot 304/6 Winakang Street Munibung Hill, SPEERS POINT NSW 2284
  • Total Area (sq) sq
  • Total Area (m2) m2
  • Min Lot Width m
  • House Width m
  • House Length m
Features
    • House
    • 4 bed
    • 2 bath
    • 2 Parking Spaces
    • Air Conditioning
    • Alarm System
    • Land is 608 m²
    • Floor Area is 264 m²
    • 3 Toilet
    • 2 Garage
    • Air Conditioning
    • Security System
    • Remote Garage
    • Secure Parking
    • Study
    • Dishwasher
    • Built In Robes
    • Rumpus Room
    • Outdoor Entertaining
    • Ducted Heating
    • Ducted Cooling
    Main Floor Plan

    Similar House and Land Packages

    SPEERS POINT

    $1,644,000

    Lot 304/6 Winakang Street Munibung Hill, SPEERS POINT NSW 2284

    4
    Bed
    2
    Bath
    2
    Park
    264m2
    House Size
    608m2
    Lot Size

    SPEERS POINT

    $1,475,000

    Lot 303/4 Winakang Street Munibung Hill, SPEERS POINT NSW 2284

    4
    Bed
    2
    Bath
    2
    Park
    211m2
    House Size
    557m2
    Lot Size

    SPEERS POINT

    $1,720,000

    Lot 310/18 Winakang Street Munibung Hill, SPEERS POINT NSW 2284

    5
    Bed
    2
    Bath
    2
    Park
    318m2
    House Size
    608m2
    Lot Size

    tyler and lauren

    House and Land package for first home buyers

    First time home buyers Tyler and Lauren invested in their forever home with a Montgomery Homes house and land package. Looking for a home with a variety of living spaces to entertain friends and family, ample storage options and plenty of natural light made the Southport 217 design a perfect choice for them.

    Play Video

    Want to get in touch with one of our consultants?

    Our team can help find the best home for your family.

    This field is hidden when viewing the form
    This field is hidden when viewing the form
    Marketing opt-in
    HIA_member_30years

    Testimonials

    quote-mark-100

    Our new home was built in record time. Quality and build were all up to a good standard. Issues were dealt with promptly and rectified. The entire build was very well managed by our site supervisor.

    Alister, 2025

    quote-mark-100

    A positive build experience. I would say similar quality to a custom build, but at an affordable price point.

    Bentley, 2024

    quote-mark-100

    "Happy from the very first stage to the very end, it has been a breeze... The quality of the build is perfect and a big thank to my Site Supervisor who always kept me up-to-date with the progress.
    Overall, I'm extremely happy I chose Montgomery.
    Thank you for everything, it is truly beautiful and we love it!"

    Ingrid, 2022, Hunter Region

    quote-mark-100

    “We are really impressed by the process / system you have in place to keep your clients up to speed with what to expect and what the progressive steps are during the entire process. i.e. from initial signing through to handover and everything required during. We have built before with other builders and genuinely feel that this process and the people we’ve dealt with made building with Montgomery Homes a step well above what we have experienced before.”

    Venn, July 2020, Eleebana

    quote-mark-100

    “Easy, friendly, stress-free, professional team! Kyle has exceptional organisational skills!! Would definitely build with Montgomery again ☺”

    Sexton

    quote-mark-100

    “Would recommend Montgomery Homes. Communication with supervisor was excellent. Build went well considering this is our first build.”

    Lewis, June 2020, Medowie

    quote-mark-100

    Fantastic! – Tim Lees our site supervisor was 10/10. Had everything covered throughout our entire build. He delivered everything on time and communicated effectively and efficiently. Everything was finished to a very high quality.

    Nick, 2024

    quote-mark-100

    “The friendly patient staff are courteous and always willing to go the extra mile & to answer questions. We made many changes to the basic design and appreciated the flexibility afforded.”

    Inglis-Powell, March 2019

    quote-mark-100

    “We found Montgomery very flexible with creating our design and very helpful, we have already recommended Montgomery to our friends & family.”

    Holmes, February 2019

    quote-mark-100

    “A great looking first home and a great team to work with!”

    Grace, July 2020, Box Hill

    quote-mark-100

    “You get a high standard of finish, which is in line with their time estates of a build.”

    Blakely, June 2020, Catherine Hill Bay

    quote-mark-100

    “Go with Montgomery Homes! Our experience has been made so easy and pleasurable with all the friendly, professional and expert advice along the way. Thank you!”

    Ukmar, May 2020, Summerland Point

    quote-mark-100

    “Very professional, made building a home easy and trouble free. Very much appreciated”

    Ridley, July 2020, The Entrance North

    quote-mark-100

    Easy build – we are very happy with our finished product of our build and would like to thank Colin as he was very helpful right through out the process. Thank you.

    Stephen, 2024

    quote-mark-100

    "We are very happy with the service we received from Montgomery. Friendly and helpful staff with good attention to detail. It was our first build and we found it an enjoyable experience. They were very flexible when altering the basic designs of their range and we are thrilled with our new home."

    Vicki, 2021

    quote-mark-100

    “Well worth considering to get a Montgomery Home – excellent selections, service and quality!’’

    Cauchi, North Rothbury, May 2020

    quote-mark-100

    "Montgomery Homes were very professional and helpful throughout the whole sales and then build process. The digital client portal was a great way to have us see updates as the building was underway. They kept us informed throughout and had our house completed earlier than expected. The end result is an amazing looking house that is super comfortable to live in."

    Belinda and Matthew, 2022

    quote-mark-100

    “Couldn’t fault the process – very open and honest about pricing etc. High quality and easy to deal with. Thank you ☺”

    Shrume & Carroll, May 2020, Minmi

    quote-mark-100

    “An amazing experience and the finished product was outstanding, you will not be disappointed. Top quality build and the supervisor made our experience memorable and enjoyable”

    Plank, April 2020, Maitlandvale

    quote-mark-100

    A great result – our supervisor, (Colin), communicated clearly and in a timely manner. This meant the process was easy and we have a house we are very pleased with. We would recommend Colin and Montgomery.

    Grant, 2025

    quote-mark-100

    "The process was great. I was happy with the communication and updates.
    My new home is amazing, highly recommend Montgomery Homes.
    I can’t wait to start our new chapter in our forever home."

    Gina C, 2023

    SIGN UP TO OUR NEWSLETTER

    Receive exclusive access to new design information, home building and styling advice, promotions, display home openings and more!